Doppelgehöft Berlin-Rixdorf
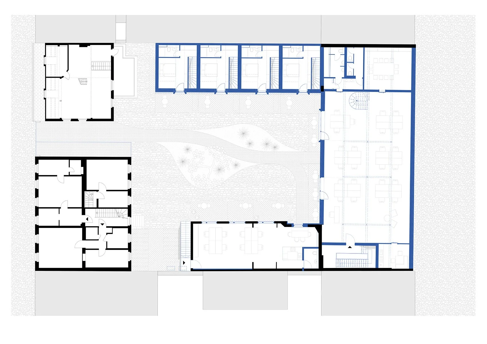
Das Doppelgehöft in Berlin-Rixdorf bestehend aus zwei Vorderhäusern, einer Remise rechts und links und einem Quergebäude wird zu einem gemischt genutzten Hofensemble mit Wohn- und Gewerbeflächen umgestaltet. Die zwei Vorderhäuser bleiben im Bestand unverändert und werden weiterhin zu Wohnzwecken genutzt.
Im Zuge der Umplanung wird der linke Seitenflügel als zweigeschossige Remise mit Maisonettewohnungen neu errichtet. Das Quergebäude sowie der rechte Seitenflügel sind für gewerbliche Nutzungen vorgesehen. Die historische Grundform des Quergebäudes bleibt erhalten, während das Dach in Anlehnung an die ursprüngliche Gestaltung neu aufgebaut wird. Große Gauben sorgen für zusätzliche Belichtung und Raumqualität. Der rechte Seitenflügel bewahrt seine äußere Form und erhält eine neue Dacheindeckung.
Der Hof dient als gemeinsamer Erschließungsraum, der alle Gebäudeteile miteinander verbindet und durch seine Gestaltung und Begrünung einen zentralen Treffpunkt mit hoher Aufenthaltsqualität kreiert. Das Quergebäude, sowie der rechte Seitenflügel werden im Sinne des Denkmalschutzes wie der Bestand mit einer Putzfassade versehen. Der neue linke Seitenflügel wird in einer Kombination aus Mauerwerks- und Holzbauweise errichtet und erhält zum Hof hin eine sichtbare Holzfassade, die den Neubau ablesbar macht.
Insgesamt entsteht ein behutsam erneuertes Ensemble, das den historischen Bestand respektiert und gleichzeitig zeitgemäße Formen des Wohnens und Arbeitens ermöglicht.
Projekt-ID: 185_RIC
Aufgabe: Umbau und Erweiterung eines denkmalgeschützten Doppelgehöfts in Berlin Neukölln
Kategorie: Gewerbe, Wohnen
Projektart: Direktauftrag
Ort: Berlin (DE)
Status: in Bearbeitung
Jahr: 2024–2027
Fläche: 1.570m² (BGF) | 1.200m² (NF)
Auftraggebende: Projektgesellschaft Richardstr. 83 mbH
Mitarbeiter*innen: Alexander Hitz, Charlotte Lindner, Stefanie Fellenz
Renderings: studio nus

